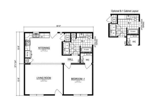
FLOOR PLAN

The Appalachian Cabin

1

1

optional

840 SF

Contact Us to Learn More About This Plan